Стандартные размеры по ISO
Полный диапазон размеров для печатной продукции в соответствии со спецификацией ISO включает в себя три серии форматов: серия А, серия В и серия С. В нашем случае мы будем иметь дело только с серией А, которая определяется как "размеры обрезных листов для стандартной печатной и почтовой бумаги".
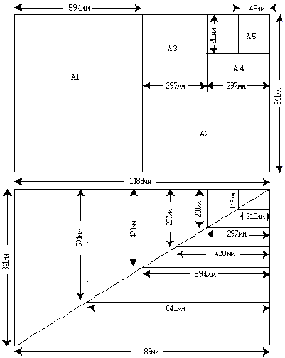
Из полного списка размеров серии А для книгопроизводства используются следующие:
| А4 | 297x210 | 113/4x81/4 |
| A5 | 210x148 | 81/4x5 7/8 |
Лист формата А5 представляет собой половину листа формата А4; в обоих случаях отношение длин их сторон составляет 1:v 2.

Рис. 1.1. Форматы серии А и их относительные размеры. (Вверху) Уменьшение размера листов с формата А0 до А5: каждый последующий формат равен половине предыдущего. (Внизу) Отношение длин сторон для каждого формата одинаково и составляет 1:v 2.
В терминологии, принятой в Великобритании, размеры 297x210 и 210x148 представляют собой версии форматов портретной ориентации. Формат А4 альбомной ориентации записывается в виде 210x297, а для альбомной ориентации формата А5 – в виде 148x210.
Стандарт ISO предлагает два размера для печатных листов, из которых после операций фальцовки и резки получаются листы форматов А4 и А5. Это размеры листов серии RA для работ с отступом изображения от обрезной кромки (unbled) и размеры серии SRA для работ "в обрез" по краю изображения (bled).
Для серии RA в книгопроизводстве используются следующие размеры печатных листов.
| RA0 | 860x1220 | 33 7/8x48 |
| RA1 | 610x860 | 24x33 7/8 |
| RA2 | 430x610 | 16 7/8x24 |
Для серии SRA соответствующие размеры печатных листов следующие.
| SRA0 | 900x1280 | 35 3/8x50 3/8 |
| SRA1 | 640x900 | 25 1/4x35 3/8 |
| SRA2 | 450x640 | 17 3/4x25 1/4 |
Лист формата SRA0 900x1280 вмещает в себя 16 страниц А4 (4 полосы расположены одна за другой горизонтально вдоль широкой стороны листа, составляя один из четырех рядов).
Для процессов печати и переплета книги формата А4 297x210 портретной ориентации с правильным направлением волокон (grain direction) (волокна бумаги расположены параллельно корешку книги) для бумаги SRA0 требуется продольное расположение волокон (long grain). (Более подробно о значении направления волокон рассказывается в разделе 9.4.1.)
Лист SRA1 640x900 вмещает 8 страниц А4 (4 расположены вертикально одна рядом с другой вдоль широкой стороны листа, составляя один ряд из двух). Для печати книги формата А4 портретной ориентации данный лист должен иметь поперечное расположение волокон (short grain).
Лист SRA2 450x640 вмещает 4 страницы А4 (2 расположены горизонтально одна рядом с другой вдоль широкой стороны листа, составляя один ряд из двух). Для печати книги формата А4 портретной ориентации лист должен иметь продольное расположение волокон.
Формат А5 является половиной формата А4 и, соответственно, в данных листах может вмещаться в два раза больше листов А5, чем листов А4, однако направление волокон при этом в каждом случае должно быть противоположным тому, которое используется для форматов А4 (подробнее об этом см. в разделе 9.4.1). До сих пор мы говорили о так называемой флатовой бумаге, т.е. нарезанной на листы большого размера. Что касается бумаги в рулонах, то ширина рулона, служащего для получения листов формата А4 или А5 будет зависеть от размера используемой печатной машины. Мы рассмотрим этот вопрос более подробно в разделе 10.4.3, когда речь пойдет о процессах рулонной офсетной печати.

Рис. 1.2. Сколько страниц А4 может вместиться в листах форматов SRA0, SRA1 и SRA2? Лист SRA0 900x1280 (вверху) вмещает 16 страниц А4. Лист SRA1 640x900 (слева) вмещает 8 страниц А4. Лист SRA2 450x640 (справа) вмещает 4 страницы А4. При рулонной офсетной печати формат SRA1 является более предпочтительным, поскольку при этом получаются книги формата А4 с правильным направлением волокон, т.е.параллельным корешку книги
В случае использования 32-страничной печатной машины (форма SRA0, 16 страниц А4) рулон должен иметь ширину 1280 мм или чуть меньше; для стандартной 16-страничной печатной машины (форма SRA1, 8 страниц А4 в форме) ширина рулона должна быть 900 мм или чуть меньше. Вторая из этих печатных машин– стандартная 16-страничная рулонная – наиболее популярна для книг формата А4 портретной ориентации, поскольку обеспечивает правильное направление волокон (right-grain) для этого формата: корешки книг параллельны направлению волокон бумаги в рулоне. Для портретных страниц формата А4, полученных при использовании 32-полосной рулонной офсетной печатной машины, будет иметь место неправильное (поперечное) направление волокон (cross-grain), поскольку корешки будут расположены под прямым углом к направлению рулона.